
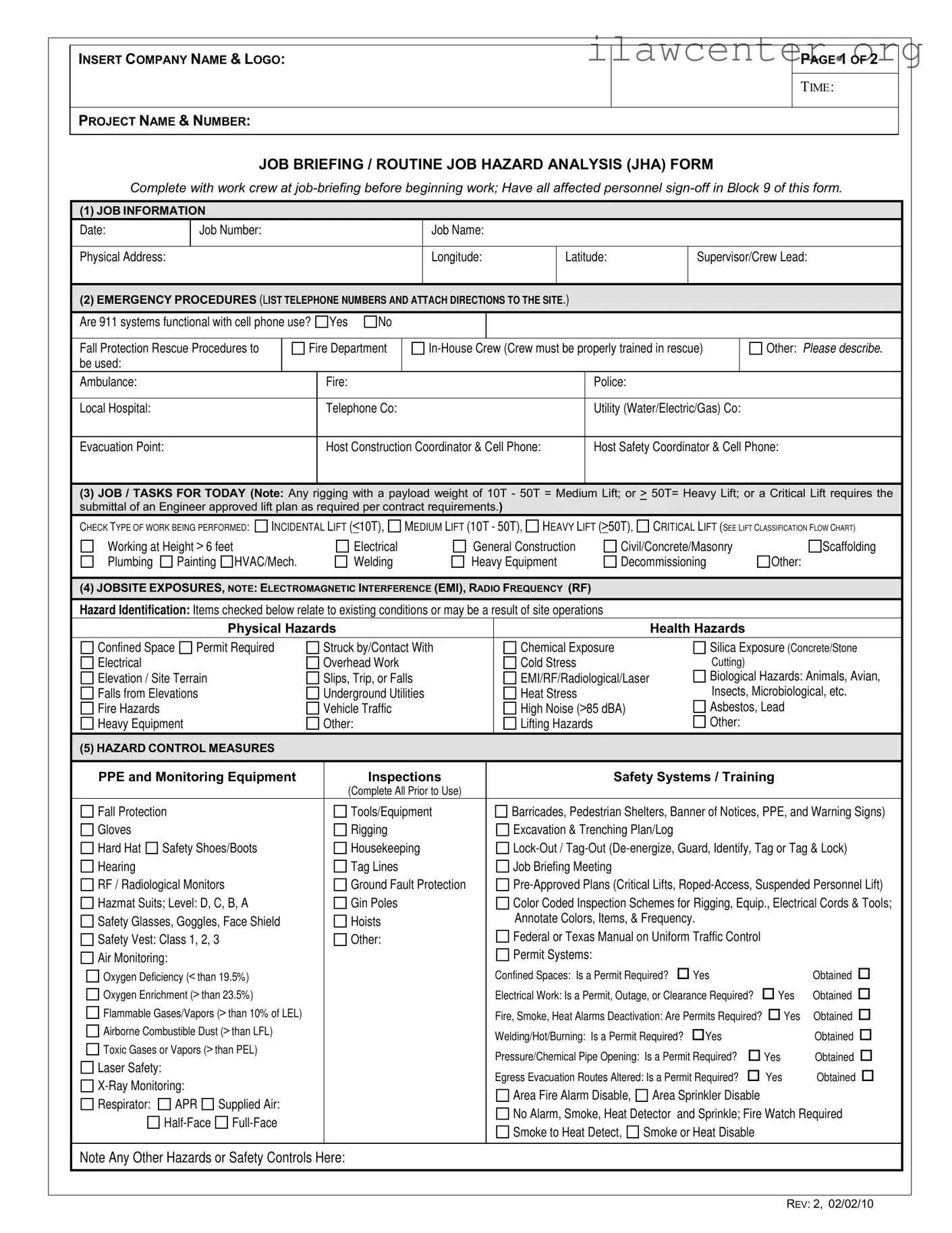
INSERT COMPANY NAME & LOGO:
PAGE 1 OF 2
TIME :
PROJECT NAME & NUMBER:
REV: 2, 02/02/10
JOB BRIEFING / ROUTINE JOB HAZARD ANALYSIS (JHA) FORM
Complete with work crew at job-briefing before beginning work; Have all affected personnel sign-off in Block 9 of this form.
(2) EMERGENCY PROCEDURES (LIST TELEPHONE NUMBERS AND ATTACH DIRECTIONS TO THE SITE.)
Are 911 systems functional with cell phone use? Yes No
Fall Protection Rescue Procedures to
be used:
In-House Crew (Crew must be properly trained in rescue)
Utility (Water/Electric/Gas) Co:
Host Construction Coordinator & Cell Phone:
Host Safety Coordinator & Cell Phone:
TODAY (Note: Any rigging with a payload weight of 10T - 50T = Medium Lift; or > 50T= Heavy Lift; or a Critical Lift requires the
submittal of an Engineer approved lift plan as required per contract requirements.
HECK
YPE OF WORK BEING PERFORMED
NCIDENTAL
IFT
EDIUM
IFT
EAVY
IFT
RITICAL
IFT
SEE LIFT CLASSIFICATION FLOW CHART)
Working at Height > 6 feet
Plumbing Painting HVAC/Mech.
Electrical General Construction
Welding Heavy Equipment
Decommissioning
Other:
NOTE
LECTROMAGNETIC
NTERFERENCE
ADIO
REQUENCY
Hazard Identification: Items checked below relate to existing conditions or may be a result of site operations
Confined Space Permit Required
Electrical
Elevation / Site Terrain
Falls from Elevations
Fire Hazards
Heavy Equipment
Overhead Work
Slips, Trip, or Falls
Underground Utilities
Vehicle Traffic
Other:
Cold Stress
EMI/RF/Radiological/Laser
Heat Stress
High Noise (>85 dBA)
Lifting Hazards
Silica Exposure (Concrete/Stone
Cutting)
Biological Hazards: Animals, Avian,
Insects, Microbiological, etc.
Asbestos, Lead
Other:
(5) HAZARD CONTROL MEASURES
PPE and Monitoring Equipment Inspections
(Complete All Prior to Use)
Safety Systems / Training
Fall Protection
Gloves
Hard Hat Safety Shoes/Boots
Hearing
RF / Radiological Monitors
Hazmat Suits; Level: D, C, B, A
Safety Glasses, Goggles, Face Shield
Safety Vest: Class 1, 2, 3
Air Monitoring:
Oxygen Deficiency (< than 19.5%)
Oxygen Enrichment (> than 23.5%)
Flammable Gases/Vapors (> than 10% of LEL)
Airborne Combustible Dust (> than LFL)
Toxic Gases or Vapors (> than PEL)
Laser Safety:
X-Ray Monitoring:
Respirator: APR Supplied Air:
Half-Face Full-Face
Tools/Equipment
Rigging
Housekeeping
Tag Lines
Ground Fault Protection
Gin Poles
Hoists
Other:
Barricades, Pedestrian Shelters, Banner of Notices, PPE, and Warning Signs)
Excavation & Trenching Plan/Log
Lock-Out / Tag-Out (De-energize, Guard, Identify, Tag or Tag & Lock)
Job Briefing Meeting
Pre-Approved Plans (Critical Lifts, Roped-Access, Suspended Personnel Lift)
Color Coded Inspection Schemes for Rigging, Equip., Electrical Cords & Tools;
Annotate Colors, Items, & Frequency.
Federal or Texas Manual on Uniform Traffic Control
Permit Systems:
Confined Spaces: Is a Permit Required? Yes Obtained
Electrical Work: Is a Permit, Outage, or Clearance Required?
Yes Obtained
Fire, Smoke, Heat Alarms Deactivation: Are Permits Required?
Yes Obtained
Welding/Hot/Burning: Is a Permit Required?
Yes Obtained
Pressure/Chemical Pipe Opening: Is a Permit Required?
Yes Obtained
Egress Evacuation Routes Altered: Is a Permit Required? Yes Obtained
Area Fire Alarm Disable, Area Sprinkler Disable
No Alarm, Smoke, Heat Detector and Sprinkle; Fire Watch Required
Smoke to Heat Detect, Smoke or Heat Disable
Note Any Other Hazards or Safety Controls Here: