Michigan Property Transfer Affidavit 2766 PDF Template

Michigan Property Transfer Affidavit 2766 PDF Template

The Michigan Property Transfer Affidavit 2766 form is a document used to report the transfer of property ownership in Michigan. This form ensures that the state has accurate information regarding property sales and changes in ownership. To get started with your property transfer, fill out the form by clicking the button below.

Article Guide

The Michigan Property Transfer Affidavit 2766 form plays a crucial role in real estate transactions throughout the state. This form is essential for documenting the transfer of property ownership and ensuring that the appropriate property tax assessments are applied. When a property changes hands, the seller must complete this affidavit, providing key details such as the sale price, the date of the transfer, and the names of both the buyer and seller. This information helps local assessors determine the property's value for tax purposes. Additionally, the form includes sections for exemptions that may apply, which can significantly impact the tax liability of the new owner. Understanding the nuances of this affidavit is vital for anyone involved in a property transaction in Michigan, as it not only facilitates a smooth transfer but also helps avoid potential legal issues down the line.

Michigan Property Transfer Affidavit 2766 Preview

 

 

 

 

 

 

 

 

 

 

 

 

Reset Form

 

 

 

 

 

 

 

 

 

 

 

 

 

 

 

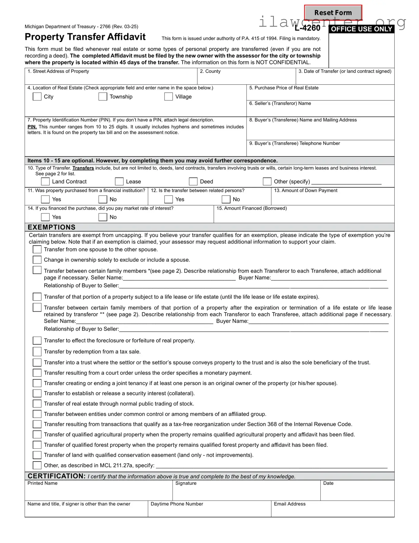
Michigan Department of Treasury - 2766 (Rev. 03-25)

 

 

 

 

 

L-4260

OFFICE USE ONLY

 

 

 

 

 

 

 

 

 

 

Property Transfer Affidavit

This form is issued under authority of P.A. 415 of 1994. Filing is mandatory.

 

 

 

 

This form must be filed whenever real estate or some types of personal property are transferred (even if you are not

 

 

recording a deed). The completed Affidavit must be filed by the new owner with the assessor for the city or township

 

 

where the property is located within 45 days of the transfer. The information on this form is NOT CONFIDENTIAL.

 

 

 

 

 

 

 

 

 

 

 

 

 

 

 

 

 

1. Street Address of Property

 

 

 

 

 

2. County

 

 

3. Date of Transfer (or land contract signed)

 

 

 

 

 

 

 

 

 

 

 

 

 

 

4. Location of Real Estate (Check appropriate field and enter name in the space

below.)

5.

Purchase Price of

Real Estate

 

 

 

 

City

 

Township

 

 

Village

 

 

 

 

 

 

 

 

 

 

 

 

 

 

 

 

 

 

 

 

 

 

 

 

 

 

6.

Seller’s (Transferor) Name

 

 

 

 

 

 

 

 

 

 

 

 

 

 

 

 

7. Property Identification Number (PIN). If you don’t have a PIN, attach legal description.

8.

Buyer’s (Transferee) Name and Mailing Address

PIN. This number ranges from 10 to 25 digits. It usually includes hyphens and sometimes includes

 

 

 

 

 

 

letters. It is found on the property tax bill and on the assessment notice.

 

 

 

 

 

 

 

 

 

 

 

 

 

 

 

 

 

 

 

 

 

 

 

 

 

 

 

 

 

 

9.

Buyer’s (Transferee) Telephone Number

 

 

 

 

 

 

 

 

 

 

 

 

 

 

 

Items 10 - 15 are optional. However, by completing them you may avoid further correspondence.

10.Type of Transfer. Transfers include, but are not limited to, deeds, land contracts, transfers involving trusts or wills, certain long-term leases and business interest.

See page 2 for list.

Land Contract

Lease

Deed

Other (specify) _______________________

11. Was property purchased from a financial institution?

12. Is the transfer between related persons?

13. Amount of Down Payment

 

 

Yes

 

No

 

 

Yes

 

 

No

 

 

 

 

 

 

 

 

 

 

 

 

 

14. If you financed the purchase, did you pay market rate

of interest?

15. Amount Financed (Borrowed)

 

 

Yes

 

No

 

 

 

 

 

 

 

 

 

 

 

 

 

 

 

 

 

EXEMPTIONS

Certain transfers are exempt from uncapping. If you believe your transfer qualifies for an exemption, please indicate the type of exemption you’re claiming below. Note that if an exemption is claimed, your assessor may request additional information to support your claim.

Transfer from one spouse to the other spouse.

Change in ownership solely to exclude or include a spouse.

Transfer between certain family members *(see page 2). Describe relationship from each Transferor to each Transferee, attach additional page if necessary. Seller Name:_____________________________________ Buyer Name:______________________________________

Relationship of Buyer to Seller:________________________________________________________________________________________

Transfer of that portion of a property subject to a life lease or life estate (until the life lease or life estate expires).

Transfer between certain family members of that portion of a property after the expiration or termination of a life estate or life lease retained by transferor ** (see page 2). Describe relationship from each Transferor to each Transferee, attach additional page if necessary. Seller Name:_____________________________________________ Buyer Name:______________________________________________

Relationship of Buyer to Seller:________________________________________________________________________________________

Transfer to effect the foreclosure or forfeiture of real property.

Transfer by redemption from a tax sale.

Transfer into a trust where the settlor or the settlor’s spouse conveys property to the trust and is also the sole beneficiary of the trust.

Transfer resulting from a court order unless the order specifies a monetary payment.

Transfer creating or ending a joint tenancy if at least one person is an original owner of the property (or his/her spouse).

Transfer to establish or release a security interest (collateral).

Transfer of real estate through normal public trading of stock.

Transfer between entities under common control or among members of an affiliated group.

Transfer resulting from transactions that qualify as a tax-free reorganization under Section 368 of the Internal Revenue Code.

Transfer of qualified agricultural property when the property remains qualified agricultural property and affidavit has been filed. Transfer of qualified forest property when the property remains qualified forest property and affidavit has been filed.

Transfer of land with qualified conservation easement (land only - not improvements).

Other, as described in MCL 211.27a, specify: ____________________________________________________________________________

CERTIFICATION: I certify that the information above is true and complete to the best of my knowledge.

Printed Name

Signature

Date

Name and title, if signer is other than the owner

Daytime Phone Number

Email Address

2766, Page 2

Instructions:

This form must be filed when there is a transfer of real property or one of the following types of personal property:

Buildings on leased land.

Leasehold improvements, as defined in MCL Section 211.8(h).

Leasehold estates, as defined in MCL Section 211.8(i) and (j).

Transfer of ownership means the conveyance of title to or a present interest in property, including the beneficial use of the property. For complete descriptions of qualifying transfers, please refer to MCL Section 211.27a(6)(a-j).

Excerpts from Michigan Compiled Laws (MCL), Chapter 211

**Section 211.27a(7)(d): Beginning December 31, 2014, a transfer of that portion of residential real property that had been subject to a life estate or life lease retained by the transferor resulting from expiration or termination of that life estate or life lease, if the transferee is the transferor’s or transferor’s spouse’s mother, father, brother, sister, son, daughter, adopted son, adopted daughter, grandson, or granddaughter and the residential real property is not used for any commercial purpose following the transfer. Upon request by the department of treasury or the assessor, the transferee shall furnish proof within 30 days that the transferee meets the requirements of this subdivision. If a transferee fails to comply with a request by the department of treasury or assessor under this subdivision, that transferee is subject to a fine of $200.00.

*Section 211.27a(7)(u): Beginning December 31, 2014, a transfer of residential real property if the transferee is the transferor’s or the transferor’s spouse’s mother, father, brother, sister, son, daughter, adopted son, adopted daughter, grandson, or granddaughter and the residential real property is not used for any commercial purpose following the conveyance. Upon request by the department of treasury or the assessor, the transferee shall furnish proof within 30 days that the transferee meets the requirements of this subparagraph. If a transferee fails to comply with a request by the department of treasury or assessor under this subparagraph, that transferee is subject to a fine of $200.00.

Section 211.27a(10): “... the buyer, grantee, or other transferee of the property shall notify the appropriate assessing office in the local unit of government in which the property is located of the transfer of ownership of the property within 45 days of the transfer of ownership, on a form prescribed by the state tax commission that states the parties to the transfer, the date of the transfer, the actual consideration for the transfer, and the property’s parcel identification number or legal description.”

Section 211.27(6): “Except as otherwise provided in subsection (7), the purchase price paid in a transfer of property is not the presumptive true cash value of the property transferred. In determining the true cash value of transferred property, an assessing officer shall assess that property using the same valuation method used to value all other property of that same classification in the assessing jurisdiction.”

Penalties:

Section 211.27b(1): “If the buyer, grantee, or other transferee in the immediately preceding transfer of ownership of property does not notify the appropriate assessing office as required by section 27a(10), the property’s taxable value shall be adjusted under section 27a(3) and, subject to subsection (9), all of the following must be levied:

(a)Any additional taxes that would have been levied if the transfer of ownership had been recorded as required under this act from the date of transfer.

(b)Interest and penalty from the date the tax would have been originally levied.

(c)For property classified under section 34c as either industrial real property or commercial real property, a penalty in the following amount:

(i)Except as otherwise provided in subparagraph (ii), if the sale price of the property transferred is $100,000,000.00 or less, $20.00 per day for each separate failure beginning after the 45 days have elapsed, up to a maximum of $1,000.00.

(ii)If the sale price of the property transferred is more than $100,000,000.00, $20,000.00 after the 45 days have elapsed.

(d)For real property other than real property classified under section 34c as industrial real property or commercial real property, a penalty of $5.00 per day for each separate failure beginning after the 45 days have elapsed, up to a maximum of one of the following, as applicable:

(i)For property owned and occupied as a principal residence, $200.00. As used in subparagraph, “principal residence” means that term as defined in section 7dd.

(ii)For all other property, $4000.00

File Properties

Fact Name Details
Form Title Michigan Property Transfer Affidavit 2766
Purpose This form is used to report property transfers for tax purposes.
Governing Law The form is governed by the Michigan Compiled Laws, specifically MCL 211.27a.
Filing Requirement Property owners must file this affidavit within 45 days of the transfer.
Who Must File Both buyers and sellers are responsible for filing the affidavit.
Information Required Details about the property, the parties involved, and the sale price must be provided.
Where to File The completed form must be submitted to the local assessor's office.
Consequences of Non-Compliance Failure to file may result in penalties or delayed property tax assessments.
Form Availability The form can be obtained online or at local government offices.
Additional Resources More information can be found on the Michigan Department of Treasury website.

Instructions on Utilizing Michigan Property Transfer Affidavit 2766

Completing the Michigan Property Transfer Affidavit 2766 form is essential for property transactions in Michigan. Once you have filled out the form, you will need to submit it to the appropriate local government office to ensure that your property records are updated correctly.

  1. Obtain a copy of the Michigan Property Transfer Affidavit 2766 form from the Michigan Department of Treasury website or your local assessor's office.
  2. Begin by entering the property address in the designated section at the top of the form. Include the city, township, or village, and the zip code.
  3. Fill in the name of the current owner(s) of the property. Provide their complete names as they appear on the property deed.
  4. Next, indicate the name of the new owner(s) if applicable. Ensure that this information matches the details on the purchase agreement or deed.
  5. Provide the date of the transfer. This should be the date when the ownership of the property officially changes hands.
  6. Complete the section regarding the type of transfer. Check the appropriate box that describes the nature of the transfer, such as sale, gift, or inheritance.
  7. In the next section, detail any special assessments or exemptions that may apply to the property. Be thorough and accurate in your descriptions.
  8. Sign and date the form at the bottom. Ensure that all required signatures are present, as this will validate the affidavit.
  9. Make copies of the completed form for your records before submission.
  10. Submit the original form to your local assessor's office. Check for any specific submission requirements or additional documentation that may be needed.

Important Facts about Michigan Property Transfer Affidavit 2766

What is the Michigan Property Transfer Affidavit 2766 form?

The Michigan Property Transfer Affidavit 2766 form is a document used to report the transfer of property ownership in the state of Michigan. It provides essential information about the property, including the sale price, the date of transfer, and the parties involved. This form is crucial for updating local tax records and ensuring accurate property assessments.

Who needs to file the Property Transfer Affidavit?

When should the Property Transfer Affidavit be filed?

Where can I obtain the Property Transfer Affidavit 2766 form?

What information is required on the Property Transfer Affidavit?

Is there a fee associated with filing the Property Transfer Affidavit?

What happens if I do not file the Property Transfer Affidavit?

Can I file the Property Transfer Affidavit electronically?

What if the property is transferred as a gift?

Where do I submit the Property Transfer Affidavit once completed?

Common mistakes

Filling out the Michigan Property Transfer Affidavit 2766 form can be a straightforward process, but many people make common mistakes that can lead to complications. One frequent error occurs when individuals fail to provide accurate property descriptions. The form requires specific details about the property, such as its address and parcel number. Missing or incorrect information can delay the transfer process and lead to potential disputes.

Another mistake often seen is the omission of required signatures. All parties involved in the property transfer must sign the affidavit. If a signature is missing, the form may be deemed incomplete, resulting in additional paperwork and delays. It’s crucial to double-check that everyone involved has signed before submitting the document.

Some people also neglect to date the form appropriately. The date of signing is important for legal purposes and can affect the timeline of the property transfer. An undated form may raise questions about the validity of the transfer and could lead to complications during the review process.

Inaccurate valuation of the property is another common issue. The affidavit requires a fair market value to be reported. Underestimating or overestimating this value can have tax implications and may trigger audits. Ensuring that the property is valued correctly is essential for compliance with local regulations.

Additionally, individuals sometimes fail to check for previous exemptions or changes in ownership that could affect the transfer. Not accounting for prior exemptions can result in unexpected tax liabilities. It is important to review the property’s history to ensure that all relevant information is included.

Finally, many people overlook the need for supporting documentation. Certain circumstances, such as transfers between family members or transfers due to divorce, may require additional paperwork. Failing to include these documents can lead to delays and complications in the transfer process.

Documents used along the form

The Michigan Property Transfer Affidavit 2766 form is an important document used during property transfers in Michigan. When dealing with property transactions, several other forms and documents may be necessary to ensure a smooth process. Here’s a list of commonly used forms that often accompany the Michigan Property Transfer Affidavit.

  • Warranty Deed: This document transfers ownership of property from one party to another, guaranteeing that the seller holds clear title to the property.
  • Quit Claim Deed: This form allows a property owner to transfer their interest in the property to another party without making any warranties about the title.
  • Seller's Disclosure Statement: Sellers must provide this document to inform potential buyers of any known issues with the property, such as structural problems or past flooding.
  • Title Insurance Policy: This document protects the buyer and lender against any claims or disputes over the property title after the purchase.
  • Property Tax Statement: This statement shows the current property tax obligations and ensures the buyer understands their financial responsibilities.
  • Affidavit of Value: This form provides a sworn statement regarding the value of the property being transferred, which can be essential for tax purposes.
  • Closing Statement: This document outlines the final financial details of the property transaction, including costs, fees, and the distribution of funds.
  • Mortgage Documents: If the buyer is financing the purchase, these documents will detail the terms of the mortgage agreement.
  • Property Survey: A survey provides a detailed map of the property boundaries, helping to prevent disputes over property lines.
  • Homeowners Association (HOA) Documents: If the property is part of an HOA, these documents outline the rules, regulations, and fees associated with the community.

Each of these documents plays a vital role in the property transfer process in Michigan. Being aware of them can help buyers and sellers navigate their transactions more effectively and avoid potential issues down the line.

Similar forms

  • Property Transfer Tax Return (Form 2766): This document is filed to report the transfer of property and calculate the associated tax. Similar to the Property Transfer Affidavit, it provides details about the property and the transaction.
  • Quit Claim Deed: This form is used to transfer ownership of property without any warranties. Like the Property Transfer Affidavit, it formalizes the change in ownership but does not include tax information.
  • Warranty Deed: This document guarantees that the seller holds clear title to the property. It serves a similar purpose in transferring ownership, but it offers more protection to the buyer compared to a quit claim deed.
  • Real Estate Purchase Agreement: This contract outlines the terms of the sale between buyer and seller. While it does not transfer property itself, it lays the groundwork for the transfer, similar to the affidavit's role in documenting the transaction.
  • Affidavit of Title: This sworn statement confirms the seller’s ownership and any claims against the property. It complements the Property Transfer Affidavit by providing additional assurance about the title.
  • Deed of Trust: This document secures a loan by transferring property title to a trustee. It is related to property transfers and helps clarify financial obligations, similar to how the Property Transfer Affidavit clarifies ownership changes.
  • Notice of Transfer: This document informs local authorities about the change in property ownership. It serves a similar purpose to the Property Transfer Affidavit by ensuring that records are updated.
  • Title Insurance Policy: This document protects against losses due to defects in title. While it does not directly transfer property, it is often associated with property transactions, similar to the Property Transfer Affidavit's role in documenting ownership changes.

Dos and Don'ts

When filling out the Michigan Property Transfer Affidavit 2766 form, it's important to be thorough and accurate. Here are some key do's and don'ts to keep in mind:

  • Do provide accurate information about the property, including the address and legal description.
  • Do ensure that all signatures are completed where required. Missing signatures can delay processing.
  • Don't leave any fields blank. If a question does not apply, write "N/A" to indicate it was considered.
  • Don't forget to submit the form within the required timeframe after the property transfer to avoid penalties.

Misconceptions

The Michigan Property Transfer Affidavit 2766 form is an important document used during property transactions. However, there are several misconceptions surrounding this form that can lead to confusion. Below is a list of nine common misconceptions along with clarifications for each.

  • Misconception 1: The form is only required for sales of residential properties.
  • This is incorrect. The Property Transfer Affidavit is required for all types of property transfers, including commercial and agricultural properties.

  • Misconception 2: The affidavit must be filed before the property transfer occurs.
  • In fact, the affidavit should be filed after the property transfer has taken place, typically within 45 days of the transfer.

  • Misconception 3: Only the buyer needs to sign the affidavit.
  • Both the buyer and the seller must sign the form to confirm the details of the transaction.

  • Misconception 4: The form is only necessary for transfers that involve a mortgage.
  • This is not true. The affidavit is required for any transfer of ownership, regardless of whether financing is involved.

  • Misconception 5: Filing the form is optional.
  • Filing the Property Transfer Affidavit is mandatory in Michigan for all property transfers. Failure to file can result in penalties.

  • Misconception 6: The form is only for tax purposes.
  • While the affidavit is used for tax assessment, it also serves to document the change of ownership and protect the rights of both parties involved.

  • Misconception 7: The affidavit can be filed electronically.
  • Currently, the Property Transfer Affidavit must be submitted in paper form to the local assessor's office.

  • Misconception 8: You can use a generic form for property transfers.
  • Using the specific Michigan Property Transfer Affidavit 2766 form is necessary, as it contains the required information and format mandated by state law.

  • Misconception 9: There is no deadline for filing the affidavit.
  • There is a strict deadline of 45 days from the date of transfer to file the affidavit, which must be adhered to in order to avoid complications.

Key takeaways

Filling out the Michigan Property Transfer Affidavit 2766 form is an important step when transferring property ownership. Here are some key takeaways to keep in mind:

  • Purpose of the Form: This affidavit is primarily used to report the transfer of property ownership to the local tax assessor's office.
  • Who Needs to File: The seller or the buyer of the property is responsible for completing and submitting this form.
  • Deadline for Submission: It must be filed within 45 days of the property transfer to ensure accurate assessment of property taxes.
  • Information Required: The form requires details such as the property address, the names of the parties involved, and the sale price.
  • Impact on Taxes: Filing the affidavit can affect property tax assessments, potentially leading to a reassessment based on the sale price.
  • Multiple Transfers: If there are multiple transfers of the same property, a separate affidavit must be filed for each transaction.
  • Keep a Copy: Always retain a copy of the completed affidavit for your records, as it serves as proof of the transfer.

Understanding these key points can help ensure a smooth property transfer process in Michigan.