
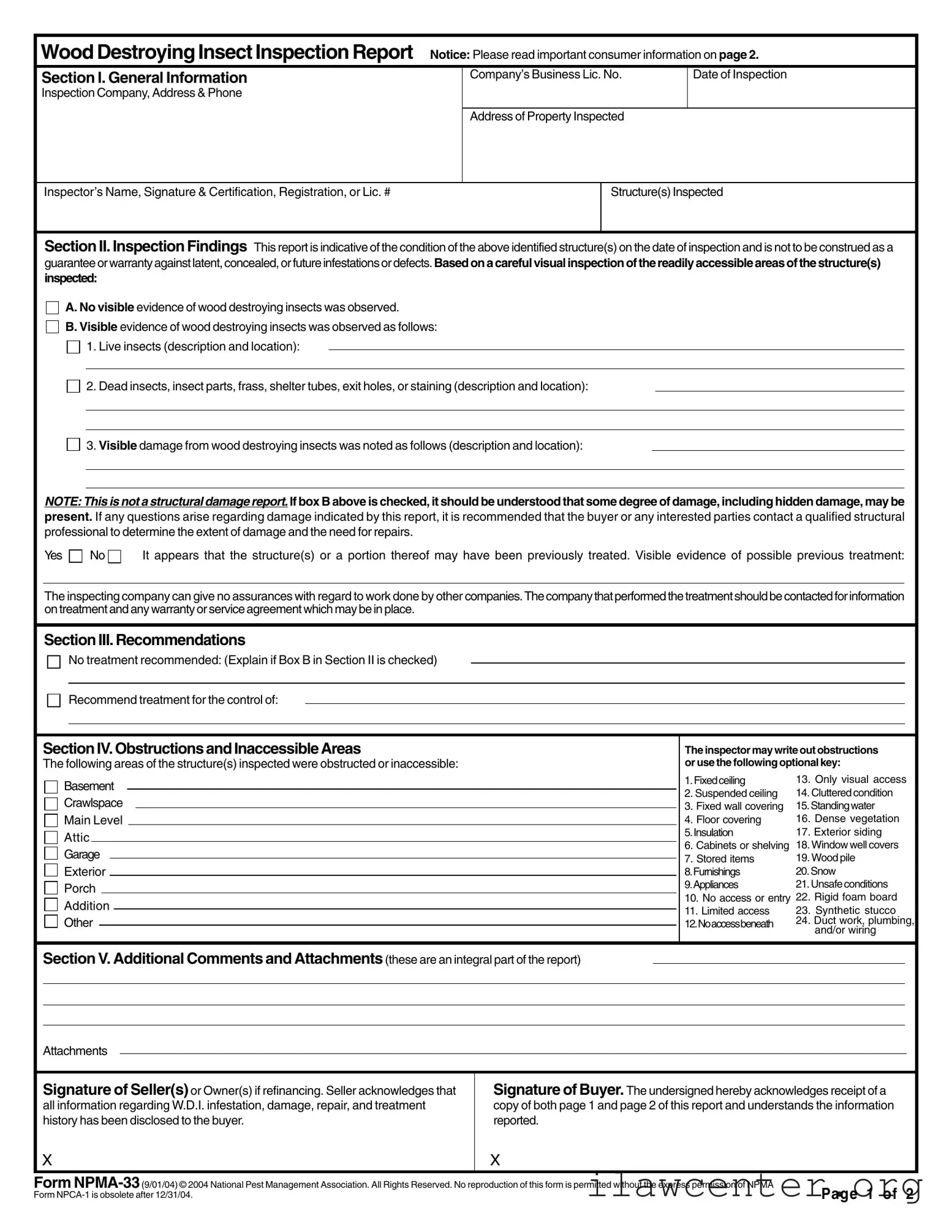
1. About the Inspection: A visual inspection was conducted in the readily accessible areas of the structure(s) indicated (see Page
1) including attics and crawlspaces which permitted entry during the inspection. The inspection included probing and/or
sounding of unobstructed and accessible areas to determine the presence or absence of visual evidence of wood destroying
insects. The WDI inspection firm is not responsible to repair any damage or treat any infestation at the structure(s) inspected,
except as may be provided by separate contract. Also, wood destroying insect infestation and/or damage may exist in concealed
or inaccessible areas. The inspection firm cannot guarantee that any wood destroying insect infestation and/or damage disclosed
by this inspection represents all of the wood destroying insect infestation and/or damage which may exist as of the date of the
inspection.
For purposes of this inspection, wood destroying insects include: termites, carpenter ants, carpenter bees, and
reinfesting wood boring beetles. This inspection does not include mold, mildew or noninsect wood destroying organisms.
This report shall be considered invalid for purposes of securing a mortgage and/or settlement of property transfer if not
used within ninety (90) days from the date of inspection.
This shall not be construed as a 90-day warranty. There is no
warranty, express or implied, related to this report unless disclosed as required by state regulations or a written
warranty or service agreement is attached.
2. Treatment Recommendation Guidelines Regarding Subterranean Termites: FHA and VA require treatment when any active
infestation of subterranean termites is found. If signs of subterranean termites — but no activity — are found in a structure that
shows no evidence of having been treated for subterranean termites in the past, then a treatment should be recommended. A
treatment may also be recommended for a previously treated structure showing evidence of subterranean termites — but no
activity — if there is no documentation of a liquid treatment by a licensed pest control company within the previous five years
unless the structure is presently under warranty or covered by a service agreement with a licensed pest control company.
3. Obstructions and Inaccessible Areas: No inspection was made in areas which required the breaking apart or into, dismantling,
removal of any object, including but not limited to: moldings, floor coverings, wall coverings, siding, fixed ceilings, insulation,
furniture, appliances, and/or personal possessions; nor were areas inspected which were obstructed or inaccessible for physical
access on the date of inspection. Your inspector may write out inaccessible areas or use the key in Section IV. Crawl spaces,
attics, and/or other areas may be deemed inaccessible if the opening to the area is not large enough to provide physical access for
the inspector or if a ladder was required for access. Crawl spaces (or portions thereof) may also be deemed inaccessible if there
is less than 24 inches of clearance from the bottom of the floor joists to the surface below. If any area which has been reported as
inaccessible is made accessible, the inspection company may be contacted for another inspection. An additional fee may apply.
4. Consumer Maintenance Advisory Regarding Integrated Pest Management for Prevention of Wood Destroying Insects.
Any structure can be attacked by wood destroying insects. Homeowners should be aware of and try to eliminate conditions
which promote insect infestation in and around their structure(s). Factors which may lead to wood destroying insect infestation
include: earth to wood contact, foam insulation at foundation in contact with soil, faulty grade, improper drainage, firewood
against structure(s), insufficient ventilation, moisture, wood debris in crawlspace, wood mulch or ground cover in contact with
the structure, tree branches touching structure(s), landscape timbers and wood decay. Should these or other conditions exist,
corrective measures should be taken in order to reduce the chances of infestation of wood destroying insects and the need for
treatment.
5. Neither the inspecting company nor the inspector has had, presently has, or contemplates having any interest in the
property inspected.
Important Consumer Information Regarding
the Scope and Limitations of the Inspection
Page 2 of 2
Please read this entire page as it is part of this report. This report is not a guarantee or warranty as to the absence of wood destroying
insects nor is it a structural integrity report. The inspector’s training and experience do not qualify the inspector in damage evaluation or
any other building construction technology and/or repair.
Form NPMA-33 (9/01/04) © 2004 National Pest Management Association. All Rights Reserved. No reproduction of this form is permitted without the express permission of NPMA
Form NPCA-1 is obsolete after 12/31/04.