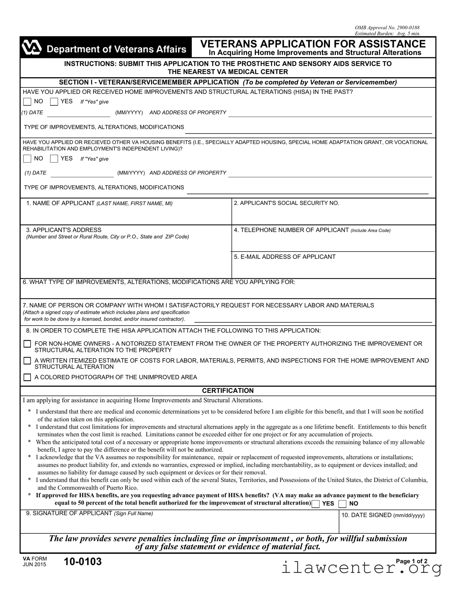
Instructions on Utilizing Va 10 0103
Filling out the VA Form 10-0103 is a straightforward process that requires careful attention to detail. This form is essential for veterans and servicemembers seeking assistance with home improvements and structural alterations. After completing the form, it must be submitted to the Prosthetic and Sensory Aids Service at the nearest VA medical center for processing.
- Begin by indicating whether you have previously applied for or received Home Improvements and Structural Alterations (HISA) by selecting "Yes" or "No."
- If you answered "Yes," provide the date (in MM/YYYY format) and the address of the property where the improvements were made, along with the type of improvements.
- Next, indicate if you have applied for or received other VA housing benefits. Again, select "Yes" or "No."
- If "Yes," provide the relevant date and address of the property, along with the type of improvements.
- Fill in your name as the applicant (last name, first name, middle initial).
- Provide your Social Security number.
- Enter your complete address, including the number and street or rural route, city or P.O., state, and ZIP code.
- Include your telephone number, ensuring you include the area code.
- Provide your email address.
- Specify the type of improvements, alterations, or modifications you are applying for.
- List the name of the person or company with whom you have satisfactorily requested the necessary labor and materials. Attach a signed estimate that includes plans and specifications for the work.
- If you are a non-homeowner, attach a notarized statement from the property owner authorizing the improvement or alteration.
- Attach a written itemized estimate of costs for labor, materials, permits, and inspections related to the home improvement.
- Include a colored photograph of the unimproved area.
- Sign the application with your full name.
- Finally, date your signature in MM/DD/YYYY format.
Once you have completed all the steps, review the form for accuracy and completeness before submitting it to the appropriate VA medical center. Be aware that the processing of your application will take time, and you will receive notification regarding the action taken on your request.

