Welder Performance Qualification Record PDF Template

Welder Performance Qualification Record PDF Template

The Welder Performance Qualification Record form is a crucial document that verifies a welder's skills and qualifications. It captures essential details about the welder, the testing process, and the results of various examinations. Completing this form accurately is vital for ensuring compliance and maintaining high standards in welding practices.

To fill out the form, please click the button below.

Article Guide

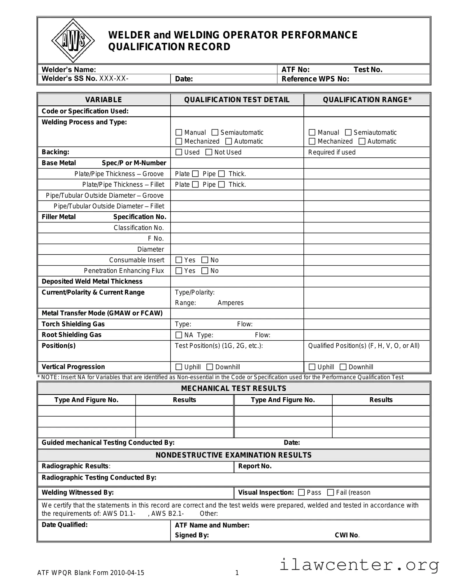
The Welder Performance Qualification Record form is an essential tool in the welding industry, serving as a comprehensive record of a welder's skills and qualifications. It captures key information about the welder, including their name, identification numbers, and the specific tests they have completed. The form outlines various details about the welding processes used, such as whether the work was manual, semiautomatic, or automatic, and it specifies the type of base metals involved. Additionally, it includes critical parameters like the thickness of the materials, the type of filler metal, and the positions in which the welder is qualified to work. Mechanical test results, non-destructive examination outcomes, and visual inspection results are also documented, ensuring a thorough evaluation of the welder's capabilities. The form concludes with certifications that affirm the accuracy of the information provided and the adherence to industry standards, such as those set by AWS. This record not only validates a welder's qualifications but also helps employers assess their skills for specific projects.

Welder Performance Qualification Record Preview

WELDER and WELDING OPERATOR PERFORMANCE

QUALIFICATION RECORD

 

Welder’s Name:

 

 

 

 

ATF No:

 

Test No.

 

Welder’s SS No. XXX-XX-

 

Date:

 

 

Reference WPS No:

 

 

 

 

 

 

 

 

 

 

 

 

 

 

VARIABLE

 

 

QUALIFICATION TEST DETAIL

 

 

QUALIFICATION RANGE*

 

 

Code or Specification Used:

 

 

 

 

 

 

 

 

 

 

 

 

 

 

 

 

 

 

 

 

 

 

 

 

 

Welding Process and Type:

 

 

 

 

 

 

 

 

 

 

 

 

 

 

 

 

Manual

Semiautomatic

 

 

Manual

 

Semiautomatic

 

 

 

 

 

Mechanized

Automatic

 

 

Mechanized

Automatic

 

 

 

 

 

 

 

 

 

 

 

Backing:

 

 

 

Used

Not Used

 

 

Required if used

 

 

 

 

 

 

 

 

 

 

 

 

 

 

 

Base Metal

Spec/P or M-Number

 

 

 

 

 

 

 

 

 

 

 

 

 

 

 

 

 

 

 

 

 

 

 

 

Plate/Pipe Thickness – Groove

 

Plate

Pipe

Thick.

 

 

 

 

 

 

 

 

 

 

 

 

 

 

 

 

 

 

 

 

 

Plate/Pipe Thickness – Fillet

 

Plate

Pipe

Thick.

 

 

 

 

 

 

 

 

 

 

 

 

 

 

 

 

 

 

 

 

Pipe/Tubular Outside Diameter – Groove

 

 

 

 

 

 

 

 

 

 

 

 

 

 

 

 

 

 

 

 

 

 

 

 

 

Pipe/Tubular Outside Diameter – Fillet

 

 

 

 

 

 

 

 

 

 

 

 

 

 

 

 

 

 

 

 

 

 

 

 

 

 

Filler Metal

Specification No.

 

 

 

 

 

 

 

 

 

 

 

 

 

 

 

 

 

 

 

 

 

 

 

 

 

 

 

Classification No.

 

 

 

 

 

 

 

 

 

 

 

 

 

 

 

 

 

 

 

 

 

 

 

 

 

 

 

F No.

 

 

 

 

 

 

 

 

 

 

 

 

 

 

 

 

 

 

 

 

 

 

 

 

 

 

 

Diameter

 

 

 

 

 

 

 

 

 

 

 

 

 

 

 

 

 

 

 

 

 

 

 

 

 

 

 

Consumable Insert

 

Yes

No

 

 

 

 

 

 

 

 

 

 

 

 

 

 

 

 

 

 

 

 

 

 

 

 

Penetration Enhancing Flux

 

Yes

No

 

 

 

 

 

 

 

 

 

 

 

 

 

 

 

 

 

 

 

 

 

 

Deposited Weld Metal Thickness

 

 

 

 

 

 

 

 

 

 

 

 

 

 

 

 

 

 

 

 

 

 

 

 

Current/Polarity & Current Range

 

Type/Polarity:

 

 

 

 

 

 

 

 

 

 

 

 

 

Range:

Amperes

 

 

 

 

 

 

 

 

 

 

 

 

 

 

 

 

 

 

 

 

Metal Transfer Mode (GMAW or FCAW)

 

 

 

 

 

 

 

 

 

 

 

 

 

 

 

 

 

 

 

 

 

 

 

 

Torch Shielding Gas

 

Type:

 

Flow:

 

 

 

 

 

 

 

 

 

 

 

 

 

 

 

 

 

 

Root Shielding Gas

 

NA Type:

Flow:

 

 

 

 

 

 

 

 

 

 

 

 

 

 

 

 

Position(s)

 

 

 

Test Position(s) (1G, 2G, etc.):

 

 

Qualified Position(s) (F, H, V, O, or All)

 

 

 

 

 

 

 

 

 

 

Vertical Progression

 

Uphill

Downhill

 

 

Uphill

Downhill

 

 

 

 

 

 

 

 

 

 

 

 

 

 

 

* NOTE: Insert NA for Variables that are identified as Non-essential in the Code or Specification used for the Performance Qualification Test

 

 

 

 

MECHANICAL TEST RESULTS

 

 

 

Type And Figure No.

 

 

Results

 

Type And Figure No.

Results

 

 

 

 

 

 

 

 

 

 

 

 

 

 

 

 

 

 

 

 

 

 

 

 

 

 

 

 

 

 

 

 

 

 

Guided mechanical Testing Conducted By:

 

Date:

 

 

 

 

 

 

 

 

 

 

 

 

 

NONDESTRUCTIVE EXAMINATION RESULTS

 

 

 

Radiographic Results:

 

 

 

Report No.

 

 

 

 

 

 

 

 

 

 

Radiographic Testing Conducted By:

 

 

 

 

 

 

 

 

 

 

 

 

 

 

 

 

 

 

 

 

 

Welding Witnessed By:

 

 

 

Visual Inspection: Pass

Fail (reason

)

 

 

 

 

 

We certify that the statements in this record are correct and the test welds were prepared, welded and tested in accordance with

 

the requirements of: AWS D1.1-

, AWS B2.1-

Other:

 

 

 

 

 

 

 

 

 

Date Qualified:

 

ATF Name and Number:

 

 

 

 

 

 

Signed By:

CWI No.

 

 

 

 

 

 

 

 

ATF WPQR Blank Form 2010-04-15

 

 

1

 

 

File Properties

Fact Name Description
Welder Identification The form requires the welder's name, ATF number, and Social Security number to ensure proper identification.
Test Information Details such as the test number and date of qualification are essential for tracking performance over time.
WPS Reference The form must include a reference to the Welding Procedure Specification (WPS) used for the qualification test.
Qualification Range It outlines the variables in the qualification test, including welding processes, base metal specifications, and thickness ranges.
Mechanical Testing Results from mechanical tests must be documented, indicating the type of testing and outcomes to validate performance.
Nondestructive Examination Radiographic results and visual inspection outcomes are crucial for confirming the integrity of the welds.
Governing Laws State-specific forms may be governed by laws such as AWS D1.1 or AWS B2.1, depending on the jurisdiction and application.

Instructions on Utilizing Welder Performance Qualification Record

Filling out the Welder Performance Qualification Record form is a crucial step in documenting a welder's skills and qualifications. Following these steps will help ensure that all necessary information is accurately captured for compliance and assessment purposes.

  1. Begin with the welder’s name at the top of the form.
  2. Fill in the ATF number and test number in the designated fields.
  3. Provide the welder's Social Security number (SS No.) in the appropriate space.
  4. Enter the date of the test.
  5. List the reference WPS number.
  6. Specify the code or specification used for the qualification.
  7. Select the welding process and type from the options provided: Manual, Semiautomatic, Mechanized, or Automatic.
  8. Indicate whether backing was used, not used, or required if used.
  9. Fill in the base metal specification or P/M number.
  10. Document the plate or pipe thickness for both groove and fillet welds.
  11. Provide the outside diameter for groove and fillet welds on pipe or tubular materials.
  12. Enter the filler metal specification number and classification number.
  13. Indicate the filler metal diameter.
  14. Specify if a consumable insert was used, and whether penetration-enhancing flux was utilized.
  15. Document the deposited weld metal thickness.
  16. Record the current/polarity and the current range in amperes.
  17. Describe the metal transfer mode (GMAW or FCAW).
  18. Specify the torch shielding gas type and flow rate.
  19. Indicate the root shielding gas type and flow rate, if applicable.
  20. List the test positions (e.g., 1G, 2G) and the qualified positions (F, H, V, O, or All).
  21. Document the vertical progression (uphill or downhill).
  22. Fill in the results of the mechanical tests conducted, including type and figure number.
  23. Record the details of the guided mechanical testing, including who conducted it and the date.
  24. Provide the radiographic results, including the report number and who conducted the testing.
  25. Indicate if the welding was witnessed by someone and the outcome of the visual inspection (pass or fail). If it failed, state the reason.
  26. Certify the accuracy of the statements in the record, including the adherence to relevant requirements.
  27. Enter the date qualified and provide the ATF name and number.
  28. Ensure that the form is signed by the appropriate individual, including their CWI number.

Important Facts about Welder Performance Qualification Record

What is the purpose of the Welder Performance Qualification Record form?

The Welder Performance Qualification Record (WPQR) form serves as a crucial document that verifies a welder's qualifications and capabilities. It captures essential information about the welder, the welding process used, and the specific tests conducted. This record is vital for ensuring that welders meet industry standards and are capable of producing high-quality welds that comply with safety and performance specifications.

What information is included in the WPQR form?

The WPQR form includes a variety of details, such as the welder's name, identification numbers, and the date of the qualification test. It also outlines the reference Welding Procedure Specification (WPS) number, the welding processes used, and the types of base metals and filler materials involved. Additionally, it documents the mechanical test results and non-destructive examination outcomes, ensuring a comprehensive overview of the welder's performance during the qualification process.

How does a welder qualify using the WPQR form?

A welder qualifies by performing a series of tests as outlined in the relevant codes or specifications. These tests assess the welder's ability to produce sound welds under specific conditions. After completing the tests, the results are recorded on the WPQR form. If the welder meets the required standards, they are deemed qualified for the specified welding processes and positions, allowing them to work on projects that require those skills.

What is the significance of the mechanical test results recorded on the form?

The mechanical test results are a critical component of the WPQR form, as they provide evidence of the weld's integrity and performance under stress. These tests typically include tensile strength, bend tests, and impact tests. The results help to determine whether the weld meets the necessary strength and durability requirements outlined in industry standards. A pass in these tests is essential for the welder's qualification and assures employers of the quality of the work produced.

Who is responsible for completing and signing the WPQR form?

The WPQR form must be completed by the welder undergoing the qualification process, with assistance from a Certified Welding Inspector (CWI) or other qualified personnel. The CWI plays a vital role in witnessing the tests and verifying that the procedures followed comply with the applicable codes and standards. Once all necessary information is documented, the CWI and the welder must sign the form, certifying that the statements are accurate and the tests were conducted appropriately.

Common mistakes

Completing the Welder Performance Qualification Record (WPQR) form is crucial for validating a welder's skills. However, several common mistakes can lead to complications down the line. One frequent error is failing to include the welder’s complete name and identification numbers. Omitting these details can result in confusion and make it difficult to verify qualifications.

Another mistake involves incorrect referencing of the Welding Procedure Specification (WPS) number. The WPS outlines the specific parameters for the welding process, and using an incorrect number can invalidate the qualification. Always double-check that the WPS number matches the one used during the test.

People often overlook the importance of accurately filling out the test details. For instance, specifying the correct welding process and type is essential. Misidentifying whether the process was manual, semiautomatic, or automatic can lead to incorrect qualifications. This can have serious implications for safety and compliance.

Some individuals neglect to document the mechanical test results. This section is vital as it provides evidence of the weld's integrity. Failing to include results or leaving them blank can raise questions about the quality of the work performed.

Another common oversight is not indicating whether backing was used during the welding process. This detail is important because it affects the weld's quality and performance. If backing was required but not used, it could compromise the weld's integrity.

Additionally, many forget to specify the positions in which the welder is qualified. Indicating the test and qualified positions is necessary for understanding the welder's capabilities. Without this information, it becomes challenging to determine if the welder can perform in specific scenarios.

Lastly, a common mistake is failing to have the form properly signed and dated by the Certified Welding Inspector (CWI). This signature is essential for validating the qualifications. Without it, the record lacks the necessary authority and could be deemed invalid.

Documents used along the form

The Welder Performance Qualification Record form is an essential document used to verify a welder's skills and qualifications. However, several other forms and documents are often utilized alongside this record to ensure comprehensive assessment and compliance with industry standards. Below is a list of these related documents, each serving a specific purpose in the qualification process.

  • Welding Procedure Specification (WPS): This document outlines the specific procedures and parameters for welding, including the type of materials, welding processes, and techniques to be used. It serves as a guide for welders to ensure consistency and quality in their work.
  • Procedure Qualification Record (PQR): This record demonstrates that the welding procedure has been tested and meets the required standards. It includes details about the test welds and the results of mechanical and non-destructive tests.
  • Non-Destructive Testing (NDT) Report: This report provides the results of inspections conducted to evaluate the integrity of welds without damaging them. Common methods include radiographic, ultrasonic, and magnetic particle testing.
  • Welder Certification Card: This card serves as proof that a welder has successfully completed the necessary qualifications and is certified to perform specific types of welding. It typically includes the welder's name, certification number, and expiration date.
  • Inspection Report: This document records the findings of inspections performed on welds, detailing any defects or non-conformities. It is crucial for maintaining quality control in welding operations.
  • Material Test Report (MTR): This report provides information about the materials used in the welding process, including their specifications and mechanical properties. It ensures that the materials meet the necessary standards for the intended application.
  • Daily Welding Log: This log is maintained by welders or supervisors to document daily welding activities, including the types of welds performed, materials used, and any issues encountered. It helps track progress and maintain accountability.
  • Quality Control Plan (QCP): This document outlines the procedures and processes in place to ensure quality in welding operations. It includes inspection criteria, testing methods, and responsibilities of personnel involved in the welding process.
  • Training Records: These records document the training and continuing education of welders. They are essential for demonstrating that welders are up-to-date with current practices and standards.

Each of these documents plays a vital role in the overall qualification and quality assurance process for welders. Together, they help ensure that welding operations meet safety and quality standards, ultimately contributing to successful project outcomes.

Similar forms

The Welder Performance Qualification Record form is essential for documenting a welder's skills and qualifications. Several other documents serve similar purposes in different contexts. Here are seven documents that share similarities with the Welder Performance Qualification Record:

  • Welding Procedure Specification (WPS): This document outlines the specific welding parameters and processes to be followed during welding. It ensures that the weld meets the necessary standards, similar to how the qualification record verifies the welder's ability to perform those procedures.
  • Procedure Qualification Record (PQR): A PQR validates the welding procedure used in a project. It details the tests performed and the results, much like the performance qualification record confirms a welder's skills through testing.
  • Welder Certification Card: This card serves as proof of a welder's certification status. It indicates the specific processes and positions the welder is qualified to work in, akin to the information captured in the performance qualification record.
  • Inspection Reports: These documents provide a record of inspections performed on welds. They assess the quality and compliance of the welds, paralleling how the performance qualification record evaluates a welder's capabilities.
  • Non-Destructive Testing (NDT) Reports: NDT reports document the results of tests that assess weld integrity without damaging the material. They are similar to the performance qualification record in that they ensure the weld meets quality standards.
  • Material Test Reports (MTR): MTRs provide detailed information about the materials used in a project. They ensure that the materials meet specified requirements, similar to how the qualification record confirms the welder's use of appropriate materials and techniques.
  • Quality Control Plans: These plans outline the processes and procedures to ensure quality in welding operations. They provide a framework for maintaining standards, much like the performance qualification record ensures that the welder is qualified to uphold those standards.

Dos and Don'ts

When filling out the Welder Performance Qualification Record form, attention to detail is crucial. Here are five important do's and don'ts to keep in mind:

  • Do ensure all personal information is accurate, including the welder's name and Social Security number.
  • Do use the correct reference WPS number, as this is essential for compliance.
  • Do specify the welding process and type clearly to avoid confusion during qualification.
  • Don't leave any required fields blank; incomplete information can lead to disqualification.
  • Don't forget to certify the accuracy of the statements made in the record; this is a legal requirement.

By following these guidelines, you can help ensure a smooth qualification process for welders. Make every effort to double-check the information before submission, as errors can cause delays or complications in the qualification process.

Misconceptions

Understanding the Welder Performance Qualification Record (WPQR) form is crucial for both welders and employers. However, several misconceptions often cloud its purpose and use. Here’s a breakdown of eight common misunderstandings:

  • Misconception 1: The WPQR is only for experienced welders.
  • This is not true. The WPQR is designed for welders at all skill levels. It serves as a way to document qualifications, regardless of experience.

  • Misconception 2: The WPQR is the same as a certification.
  • While the WPQR documents a welder's qualifications, it is not a certification itself. Certifications are often issued by third-party organizations and may require additional testing.

  • Misconception 3: Once a WPQR is completed, it never needs to be updated.
  • This is misleading. A WPQR should be updated whenever a welder changes processes, materials, or positions to ensure accuracy in their qualifications.

  • Misconception 4: All welding processes are covered under a single WPQR.
  • Each WPQR is specific to a particular welding process and material. Different processes require separate records to maintain compliance with industry standards.

  • Misconception 5: The WPQR is only necessary for structural welding.
  • This is incorrect. The WPQR is essential for various types of welding, including pipe welding and fabrication, ensuring that welders meet the necessary qualifications across different applications.

  • Misconception 6: The WPQR can be filled out by anyone.
  • Only qualified personnel, such as certified welding inspectors (CWIs), should complete the WPQR. This ensures the integrity and accuracy of the qualifications being documented.

  • Misconception 7: Visual inspection results are optional on the WPQR.
  • Visual inspection results are a critical part of the WPQR. They help verify the quality of the welds and must be included to complete the record.

  • Misconception 8: The WPQR does not need to be signed by anyone.
  • This is false. A valid WPQR must be signed by a qualified individual, such as a CWI, to confirm that all information is accurate and meets the required standards.

By clarifying these misconceptions, welders and employers can better navigate the qualification process and ensure compliance with industry standards.

Key takeaways

Filling out the Welder Performance Qualification Record (WPQR) form is an essential step in documenting a welder's qualifications. Here are some key takeaways to keep in mind:

  • Accurate Information: Ensure that all personal details, including the welder's name and identification numbers, are filled out correctly to avoid any discrepancies.
  • Reference WPS Number: Always include the Welding Procedure Specification (WPS) number used during the qualification test. This links the performance to specific procedures.
  • Qualification Range: Clearly indicate the qualification range for each variable, including the type of welding process and base metal specifications.
  • Test Details: Document the thickness of the base metal and the outside diameter of pipes or tubular components accurately to reflect the materials used.
  • Filler Metal Information: Provide complete details about the filler metal, including specification numbers and classifications, as this affects the weld quality.
  • Positioning: Specify the test and qualified positions (like 1G, 2G, etc.) to clarify the welding positions for which the welder is certified.
  • Mechanical Testing: Record the results of any mechanical tests conducted, ensuring that the testing entity and dates are noted.
  • Non-Destructive Examination: Include results from non-destructive testing, such as radiographic tests, to validate the integrity of the welds.
  • Certification: The form must be signed by a Certified Welding Inspector (CWI) to confirm that all statements are accurate and the tests were conducted according to the required standards.
  • Keep Copies: Always maintain copies of the completed WPQR form for your records, as it may be needed for future reference or audits.

By following these guidelines, the WPQR form can serve as a reliable record of a welder's qualifications and capabilities, ensuring compliance with industry standards.